61 visitas
Marca: BlackBox
Origen: Bolivia
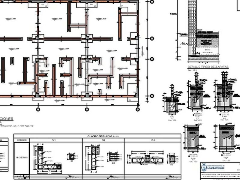
Creamos planos arquitectónicos detallados y precisos que reflejan tu visión y necesidades, proporcionando una guía completa para la construcción de tu proyecto, desde distribución de espacios hasta detalles técnicos, garantizando una ejecución sin contratiempos y resultados sobresalientes.